Bluefield C500 (2025) В продаже

Описание

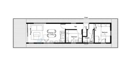
Available Layouts
The C500 is available with 2 bedrooms.
Delivery
4 months.
Key Features
Pitched roof and metal cladding to blend into a parkland setting.
Balconies front and rear.
Stainless steel handrail post & 4 strand safety wire.
Functional design with harmonious blend of style and comfort, ensuring a memorable holiday experience for guests.
Description
Applying the same Bluefield emphasis on quality, this unique unit has been designed for the holiday park market with a contemporary cabin aesthetic, complemented by composite decking and contemporary cladding that seamlessly blends with a parkland environment.
This Cabin C500 houseboat is perfect for families with 2 bedrooms and sleeping up to 6 with the addition of a sofa bed in the spacious living area. There is an open plan living / kitchen / dining area and the fully fitted kitchen comes with built in hob, combi oven and a fridge as standard. The kitchen doors and worktop are available in a range of colours and finishes. There is also a spacious storage cupboard and a fully compliant bathroom with walk in shower, toilet, wash hand basin and towel radiator.
Designed with both relaxation and entertainment in mind, the C500 houseboat features a spacious front balcony, perfect for hosting gatherings with family or friends and with ample room for a table and chairs. Additionally, a rear balcony offers a more intimate space for breakfast or a nightcap before bed.
Bespoke finishes also available inside and out.
Bluefield C500 Houseboat Standard Specification Includes
Open plan kitchen / dining / living area
Standing seam pressed metal cladding in a range of colour options
Composite decking
Galvanised chassis
Full insulated frame
Stainless steel post & wire handrail
GRC floats
Holding tank and pump
Mains fed electricity and water
Domestic hot water system
Low E thermal glazing
Highly insulated fabric
Fully compliant bathroom with WC, WHB & shower
Concealed cistern WC
Gravity fed drainage
Fully fitted kitchen & appliances
Stainless steel fixtures with USB
LED lighting throughout
High quality engineered flooring
Solid core inner doors
Plaster walls & ceiling
Moulded architraves & skirting
Acoustic internal partitions
Heat & smoke detectors
SMART home technology ready
Renewable energy options available
Wide range of cladding options
Prefabricated in factory and delivered to site
Warranty: 12 months defect period, 10 year design life on pontoons, 20 years design life on structure and 15 years design life on cladding (all subject to location and maintenance)
Moored with cleats
]]>
YachtVillage
  • Лодки
    • Все лодки в продаже
    • Моторные лодки в продаже
    • Парусные лодки в продаже
    • Надувные лодки в продаже
    • Рекламодатели
  • Чартер
    • Все лодки для устав
    • Моторные лодки для устав
    • Парусные лодки для устав
  • Причалы
  • Cниженная цена
    • Все лодки с льготной цене
    • Моторные лодки с льготной цене
    • Парусные лодки с льготной цене
    • Надувные лодки с льготной цене
  •  My YachtVillage
    • Давайте посетить YachtVillage
    • подвергайте объявления
    • Войти
    • Зарегистрироваться
  • Русский Lingua
    • it Italiano
    • en English
    • fr Française
    • de Deutsch
    • es Español
    • ru Русский
Bluefield C500 (2025) В продаже

Bluefield C500 (2025) - 245 000 GBP

anchor anchor-half anchor-empty anchor-empty anchor-empty

Bluefield C500 (2025) В продаже
e559b_fxhmggymgpcunxdkazjf.jpg

245 000 £ НДС не выплачен

anchor anchor-half anchor-empty anchor-empty anchor-empty
Bluefield C500 является 5,03 м Моторная лодка построено в 2025. Швартовка в (Великобритании) доступен в продаже на 245 000 GBP на YachtVillage.net. лодка, Лодки, лодка В продаже, Лодки новый, Моторная лодка В продаже, Моторная лодка новый, Моторные лодки В продаже, Моторные лодки новый, Ranking 3 / 10
Bates Wharf - Chertsey
Chertsey (GB)
+44 1932571141
 Все мои объявления
e559b_fxhmggymgpcunxdkazjf.jpg 7ad2e_vvmcjfxbezcicpppvsuz.jpg 13404_uwcafftdoxxeeekldguh.jpg ad38b_qewbzpecapzoszvpsqtq.jpg 39d6b_fpaxmuuhglutkuxyehtc.jpg 53954_vbhvfhtleomqrbknwseu.jpg b1106_arpzycoakdgxchlwwdix.jpg
Bates Wharf - Chertsey
Chertsey (GB)
+44 1932571141

Основные данные

Судостроительный завод
Bluefield
Модель
C500
Год постройки
2025
Длина
5,03 m
Код
863553
Последнее обновление
28.04.2026

Цена

Цена
245 000 GBP 282 687 EUR *
НДС
НДС не выплачен
* Цена в евро полностью индикативных и не обязательных, автоматически рассчитывается по текущему курсу обмена.

Расположен

Видимый Трана
Великобритании
Расположен
Chertsey

Технические данные

Длина судна
5,03 m
Ширина
1,37 m
Новая
Состояние
Новая

Аксессуары

Нет данных

Хотите узнать больше об этой лодке?    

Обитаемость

Нет данных

Каюты Типология

Нет данных

Материалы

Нет данных

Приложения

full
light

Хотите узнать больше об этой лодке?    

Поделиться


Kонтакт Bates Wharf - Chertsey

Данные успешно отправлено

Послать сообщение
Пожалуйста, выберите проверку безопасности "Я не робот"

About Us

Digibusiness srl

Viale Libertà 10

Collecchio, 43044

info@yachtvillage.net

В YachtVillage

Рекламодатели

Давайте посетить YachtVillage

подвергайте объявления

Причалы

Cookies Policy

Privacy Policy

Запрос информации

Запрос информации

Иди за нас

© 2026 YachtVillage - Design by Digibusiness Srl - P.IVA IT02184210348 - Powered by Navis.net

Свяжитесь с нами

If you would like to find out more about this boat and any other boats of this type and range, Digibusiness Srl,the Company that manages YachtVillage, and Collecchio (PR) 43044, Viale Libertà, 10, the Company that exhibits the Boat, must necessarily acquire some simple details about you (name, surname, email address and, if needed, your telephone number). These details will be processed according to the purposes and means of the processing indicated in the privacy statement under the PRIVACY Section of this website, referred to herein.

Having read the privacy statement on the treatment of personal data, I give my consent, in electronic format, to the processing of my personal data, for the purposes expressed in the above-mentioned privacy statement.

Please note that unless you give your consent we will not be able to respond to any Request for Information.

In particular, I give my consent, in electronic format, to the processing of my personal data by automated means intended solely for the purpose of linking my boating interests to any market offers so that the Company can show me any suitable products.


Without your consent will not be able to address your specific needs appropriately.
Передача данных
Пожалуйста, выберите проверку безопасности "Я не робот"

Войти / Зарегистрироваться

loading
Новый пользователь? Нажмите здесь, чтобы зарегистрироваться!
Вы забыли свой пароль или не можете получить доступ? Нажмите здесь, чтобы связаться со службой поддержки

Kонтакт Bates Wharf - Chertsey

Вы с просьбой предоставить информацию :

Bluefield C500 (2025)


If you would like to find out more about this boat and any other boats of this type and range, Digibusiness Srl,the Company that manages YachtVillage, and Bates Wharf - Chertsey, the Company that exhibits the Boat, must necessarily acquire some simple details about you (name, surname, email address and, if needed, your telephone number). These details will be processed according to the purposes and means of the processing indicated in the privacy statement under the PRIVACY Section of this website, referred to herein.

Having read the privacy statement on the treatment of personal data, I give my consent, in electronic format, to the processing of my personal data, for the purposes expressed in the above-mentioned privacy statement.

Please note that unless you give your consent we will not be able to respond to any Request for Information.

In particular, I give my consent, in electronic format, to the processing of my personal data by automated means intended solely for the purpose of linking my boating interests to any market offers so that the Company can show me any suitable products.


Without your consent Digibusiness Srl will not be able to address your specific needs appropriately.
Передача данных
Пожалуйста, выберите проверку безопасности "Я не робот"

Новое в YachtVillage?

Вы скачиваете карту о :

Bluefield C500 (2025)

Чтобы скачать печатную карту, пожалуйста, заполните следующие поля и нажмите кнопку "Начать загрузку"

Передача данных

Данные успешно отправлено

"Избранные" и "Круги" предметы

Что Любимые предметы и последовавших элементы означают? При нажатии на соответствующие кнопки, вы можете добавить или удалить текущий элемент из вашего личного выбора, указывая или менее в качестве "любимого". О каждом из этих объектов, в конце концов, вы можете решить, чтобы "следовать" или нет, если вы хотите получать уведомления о любых изменениях состояния, такие как цена и доступность.
Эта функция предназначена для зарегистрированных пользователей.

Нажмите здесь, чтобы войти

Новый пользователь? Нажмите здесь, чтобы зарегистрироваться!

Privacy Statement (GDPR EU 2016-679)

If you would like to find out more about this boat and any other boats of this type and range, Digibusiness Srl,the Company that manages YachtVillage, and Bates Wharf - Chertsey, the Company that exhibits the Boat, must necessarily acquire some simple details about you (name, surname, email address and, if needed, your telephone number). These details will be processed according to the purposes and means of the processing indicated in the privacy statement under the PRIVACY Section of this website, referred to herein.

Having read the privacy statement on the treatment of personal data, I give my consent, in electronic format, to the processing of my personal data, for the purposes expressed in the above-mentioned privacy statement.

Please note that unless you give your consent we will not be able to respond to any Request for Information.

In particular, I give my consent, in electronic format, to the processing of my personal data by automated means intended solely for the purpose of linking my boating interests to any market offers so that the Company can show me any suitable products.

Without your consent Digibusiness Srl will not be able to address your specific needs appropriately.

Privacy Statement (GDPR EU 2016-679)

If you would like to find out more about this boat and any other boats of this type and range, Digibusiness Srl,the Company that manages YachtVillage, and Bates Wharf - Chertsey, the Company that exhibits the Boat, must necessarily acquire some simple details about you (name, surname, email address and, if needed, your telephone number). These details will be processed according to the purposes and means of the processing indicated in the privacy statement under the PRIVACY Section of this website, referred to herein.

Having read the privacy statement on the treatment of personal data, I give my consent, in electronic format, to the processing of my personal data, for the purposes expressed in the above-mentioned privacy statement.

Please note that unless you give your consent we will not be able to respond to any Request for Information.

In particular, I give my consent, in electronic format, to the processing of my personal data by automated means intended solely for the purpose of linking my boating interests to any market offers so that the Company can show me any suitable products.

Without your consent Digibusiness Srl will not be able to address your specific needs appropriately.